一、竞赛主题
双创中心节点空间设计
二、竞赛内容及要求
1、设计内容:
本次设计竞赛,针对双创中心建筑内部空间和室外景观空间节点进行设计。可以在附图中选择其中若干项进行设计。
2、设计要求:
(1)立足于现有建筑设计方案进行设计。
(2)设计成果表达的数字化。参赛作品鼓励使用参数化等信息技术生成三维模型,鼓励运用VR虚拟现实软件生成可漫游、可交互的虚拟场景执行程序。
3、参赛者要求:
本次竞赛活动主要面向湖北工业大学教师及所指导的学生团队,由指导老师负责作品提交及相关事宜,每组指导教师不超过2名,学生不超过5人,参赛学生必须是湖北工业大学全日制在校大学生(含研究生)。
三、 作品提交
1、提交方式:
参赛人员需要在规定时间2021年2月28日中午12点前,将参赛作品的电子文件打包提交至指定邮箱(2274977805@qq.com),命名为“作品名称+学院全名+指导老师姓名”。
2、提交要求:
(1)图纸文件:所有图纸合并成一个PDF格式文件。
(2)影像文件:动画或其它影像文件制作成高清MP4格式。
(3)设计源文件:CAD、REVIT、SU、VR等软件制作的设计成果,将源文件按类型放入不同的文件夹。
(4)说明文件:Word格式,内容应包括:设计名称、院系全名、指导教师信息(姓名、手机号码)、学生信息(姓名)、设计简要说明。
注:在前三项文件中,不得出现院系、指导教师、学生等信息。
四、竞赛相关时间(时间根据具体要求再调整)
1、2021年1月11日—2021年1月15日,公布竞赛题目,院系宣传。
2、2021年1月18日—2021年2月28日,参赛人员通过网络提交作品。
3、2021年3月1日—2021年3月20日,评选答辩,进行颁奖。
五、奖项设置
本次竞赛对每个节点空间采用实施的设计方案给予3000元奖励,并将指导教师和学生的姓名做成铭牌logo设置于节点空间内。
六、举办单位
主办单位:基建处、教务处
承办单位:土木建筑与环境学院、艺术设计学院
七、联系方式
1、基建处:
联系人:赵静怡;电话:027-59750235;联系邮箱:2274977805@qq.com;
2、教务处:
联系人:齐萍;电话:027-59750109;
2、土木建筑与环境学院:
联系人:孙 皓;电话:13307133617;
3、艺术设计学院:
联系人:王 欣;电话:15623902396。
基建处
教务处
土木建筑与环境学院
艺术设计学院
2021年01月18日
附件:
节点空间一:入口广场

总平面图
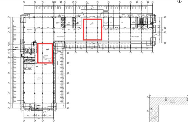
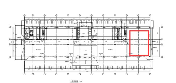
节点空间二:A栋入口门厅

A栋一层平面图
节点空间三:A栋公共交流空间

A栋三层平面图
节点空间四:B栋校园书店

B栋二层平面图
节点空间五:C栋公共活动区

C栋二层平面图